Statutory Agents' Notices Sunday, 6 April, 2025 Lancashire County Elections, 1st May 2025 I, George Rear, hereby give notice that I am the appointed Election Agent for Jayne Rear, Paul Watson, and Joan Burrows, Conservative and Unionist Party Candidates at the above election. Under the Representation of the People Act 1983 as amended, no-one may make contracts or authorise expenditure on behalf of the above-named candidates in relation to the... Local News
George Osborne releases Autumn Statement 25th November 2015 The Autumn Statement I gave today delivers on the promise we made to the British people that we would put their security first: To protect our economic security... Local News
South Ribble Remembers 11th November 2015 A STUNNING tribute to South Ribble’s fallen heroes has been officially unveiled. The new war memorial in Lostock Hall, which remembers 686 men who died serving... Local News
J Fishwick and Sons bus company update 26th October 2015 J Fishwick and Sons bus company went into Administration this weekend. This is very sad news for the local area as Fishwick's have operated a commercial local... Local News
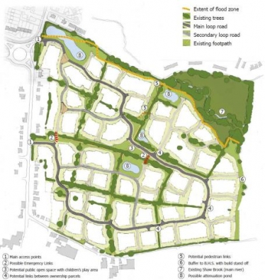
Housing plan revealed 12th October 2015 South Ribble residents are invited to have their say about proposals to extend Leyland’s Worden Park as part of a new housing development Developers and... Local News
Opportunity to meet Rt. Hon. Chris Grayling MP... 6th September 2015 The Rt. Hon. Chris Grayling MP, Leader of the House of Commons, Member of Parliament for Epsom and Ewell and the former Lord Chancellor is coming to South... Local News
South Ribble Borough Council are DOUBLE award winners! 7th August 2015 South Ribble Borough Council are DOUBLE award winners! Not only have the council retained the Customer Service Excellence Award for the 10 th year running but... Local News
Economic boost for South Ribble 25th July 2015 Adoption of a landmark plan has been heralded as a huge boost for the economic growth of South Ribble. Members of South Ribble Borough Council agreed to adopt a... Local News
Budget announced 12th July 2015 Geoge Osborne announces a budget that delivers security for working people and fairness to the taxpayer. This Government is cutting taxes for working people so... Local News
Budget News 10th July 2015 George Osborne delivers is a budget that offers security for working people and fairness to the taxpayer. The Government is cutting taxes for working people so... Local News
Kemi delivers press Conference with a survivor of grooming gangs scandal 17th June 2025 After Labour announced they finally U-turned and will begin a national inquiry into the grooming gangs, Kemi holds a press conference with a survivor. National News
Labour finally U-turn on Grooming Gang inquiry after Conservative pressure 14th June 2025 Keir Starmer has finally bowed to pressure and agreed to a national statutory inquiry into the grooming gangs scandal. National News
Kemi delivers a speech at FTSE250+ conference 12th June 2025 Kemi Badenoch has delivered a speech in the city responding to Labour's damaging plans for our economy. National News
Mel Stride responds to Rachel Reeves's spending review 11th June 2025 Today, Rachel Reeves's delivered Labour’s first Spending Review. With a torrent of promises, slogans, and self-congratulations. But not the truth. National News
Labour U-turn on Winter Fuel Payments 9th June 2025 After Conservative pressure, Labour finally reinstitute Winter Fuel Payments for 9 million pensioners National News
Kemi Badenoch exposes the laws and treaties holding Britain back 6th June 2025 Watch the Leader of the Conservative Party Kemi Badenoch deliver a keynote speech on the international treaties which are holding Britain back. National News