From southribble.gov.uk
Residents are invited to have their say about proposals to extend Leyland’s Worden Park as part of a new housing development
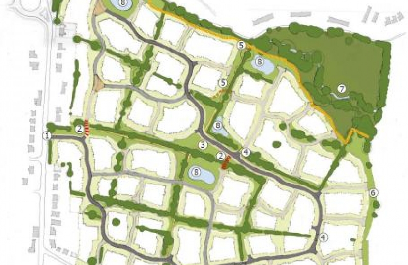
Developers and landowners have submitted a vision in the form of a masterplan for around 500 homes and public amenities to South Ribble Borough Council’s Planning Committee, which agreed to invite the community to air its views on the proposals for land which borders the park, Altcar Lane and Leyland Lane.
Developers Redrow Homes and landowners the Homes and Communities Agency have worked with the council to set out aspirations for the site, which include a mix of quality homes and features, including green spaces and two ponds, as well as the extension to Worden Park.
The opportunity for people to give their thoughts will run for six weeks, between 1 October and midnight on Sunday 15 November. Experts will be on hand to give advice and answer questions at two drop-in events. The first will take place at Wade Hall Community Centre on Monday 12 October, from 3:15pm to 7pm; while the other will be held at Leyland Lane Baptist Church Hall from 3pm to 7pm on Thursday 15 October.
Those who are unable to make it to the events will be able to view the proposals in full at Leyland Library, the Civic Centre in West Paddock during office hours, or any time online via the council website.
The Government has told South Ribble Borough Council that it must find land to build 417 homes per year up to 2026 and help deliver the Altcar Lane site, which was allocated for housing following previous and extensive consultations with the community. The development also forms part of the Preston, South Ribble and Lancashire City Deal, which will deliver substantial transport, infrastructure and community improvements over the next ten years.
Following the consultation, the next steps will be to consider all the feedback raised, which will shape the production of a more detailed planning application, which will be submitted to South Ribble Borough Council by Redrow and the HCA. The community would again be consulted as part of the planning application and decision-making process.
Councillor Cliff Hughes, South Ribble Borough Council’s cabinet member with responsibility for strategic planning and housing, said: “I’ve said before that, while major development can be inconvenient for some people, any short-term pain during construction will be far outweighed by the long-term gains, and this is a great example of that. Development funds regeneration schemes in the hearts of our towns and villages, and paves the way for new facilities and amenities, and in this instance we have an exciting possibility to improve Worden Park while providing a mix of quality housing, a proportion of which will be affordable.
“South Ribble is growing, and the council is in a formidable position to manage its growth to ensure the best possible outcome for our communities, which is always our over-riding priority. To that end, it is important that our planning experts are available to give advice to people, and I’m grateful to Redrow and the Homes and Communities Agency for making their representatives available during the consultation. I now urge people to get involved and take this golden opportunity to make their voices heard.”
County Councillor David Borrow, Deputy Leader of Lancashire County Council, said: “We're working closely with our partners on the City Deal, including South Ribble, to bring new jobs to the area and improving the local infrastructure to help people get around.
"As part of this, we need to have the housing provision to meet people's future needs, along with the community facilities that will help to give them a good quality of life."
This site is at the “masterplan” stage. So what exactly does that mean?
PERHAPS the most important thing to understand is that a masterplan is not actually a planning application.
A masterplan is generally produced for a large piece of land which could be the subject of a number of future planning applications. Having an agreed masterplan gives planning authorities like South Ribble Borough Council the power to manage such separate applications in a co-ordinated way, to ensure that all developments are complementary to one another across a wider site.
A masterplan sets down the principles of how a site will take shape over time, providing the basis against which detailed applications for individual schemes would be judged.
