George Osborne releases Autumn Statement 25th November 2015 The Autumn Statement I gave today delivers on the promise we made to the British people that we would put their security first: To protect our economic security... Local News
George Osborne releases Autumn Statement 25th November 2015 The Autumn Statement I gave today delivers on the promise we made to the British people that we would put their security first: To protect our economic security... Local News
South Ribble Remembers 11th November 2015 A STUNNING tribute to South Ribble’s fallen heroes has been officially unveiled. The new war memorial in Lostock Hall, which remembers 686 men who died serving... Local News
J Fishwick and Sons bus company update 26th October 2015 J Fishwick and Sons bus company went into Administration this weekend. This is very sad news for the local area as Fishwick's have operated a commercial local... Local News
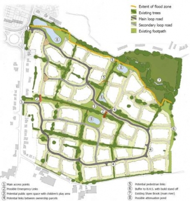
Housing plan revealed 12th October 2015 South Ribble residents are invited to have their say about proposals to extend Leyland’s Worden Park as part of a new housing development Developers and... Local News
Opportunity to meet Rt. Hon. Chris Grayling MP... 6th September 2015 The Rt. Hon. Chris Grayling MP, Leader of the House of Commons, Member of Parliament for Epsom and Ewell and the former Lord Chancellor is coming to South... Local News
South Ribble Borough Council are DOUBLE award winners! 7th August 2015 South Ribble Borough Council are DOUBLE award winners! Not only have the council retained the Customer Service Excellence Award for the 10 th year running but... Local News
Economic boost for South Ribble 25th July 2015 Adoption of a landmark plan has been heralded as a huge boost for the economic growth of South Ribble. Members of South Ribble Borough Council agreed to adopt a... Local News
Budget announced 12th July 2015 Geoge Osborne announces a budget that delivers security for working people and fairness to the taxpayer. This Government is cutting taxes for working people so... Local News